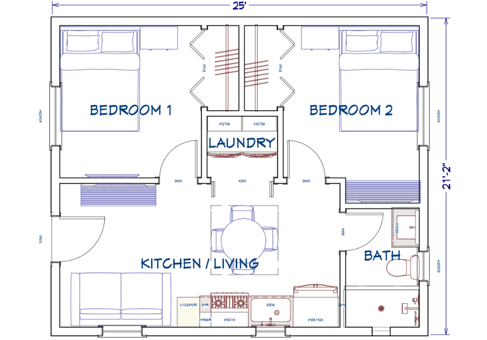
The Pine Plan
2 Bedroom, 1 Bath Floor Plan – 530 Sq Ft: Compact Design with Smart Functionality
This 2-bedroom, 1-bathroom layout maximizes every inch of its 530 square feet, offering an efficient and comfortable living space perfect for modern lifestyles. Both bedrooms are well-proportioned, providing privacy and comfort for residents. A central laundry area is conveniently located for easy access, keeping household tasks streamlined and organized.
The open-concept kitchen, dining, and living area forms the heart of the home, creating a welcoming and functional space for daily living and entertaining. The bathroom is strategically positioned for shared access, balancing convenience and practicality. Integrated storage solutions throughout the unit ensure the home remains tidy and efficient, despite its compact size.
This design is ideal for small families, roommates, or as an income-generating rental unit. Its thoughtful layout provides a balance of comfort, functionality, and flexibility for modern living in a smaller footprint.
One Story
2 BD
1 BA
530 ft²
Price: $210,000
($180K Vertical Build + $30K Standard Finish Materials)
2 Bedroom, 1 Bath Floor Plan – 530 Sq Ft: Compact, Functional, and Comfortable
This 2-bedroom, 1-bathroom layout is expertly designed to offer maximum functionality and comfort within its 530 sq ft footprint. Perfect for small families, roommates, or as a rental unit, this space-efficient plan meets the demands of modern living without compromising style or practicality.
Key Features:
• Cozy and Private Bedrooms: Both bedrooms are thoughtfully sized, providing a peaceful retreat with easy access to shared spaces.
• Open and Versatile Living Area: The kitchen, dining, and living areas blend seamlessly to create a bright and functional central hub for daily living and hosting guests.
• Efficient Kitchen Design: The kitchen offers ample counter space and storage, delivering a clean and practical setup for cooking and dining.
• Central Laundry Area: A conveniently placed laundry nook ensures essential tasks are kept organized while maintaining a clutter-free environment.
• Smart Storage Solutions: Built-in storage throughout the unit optimizes space, helping residents stay organized and tidy.
This compact yet versatile floor plan is ideal for those seeking a balance of comfort, functionality, and modern design, making it a great choice for a variety of living arrangements.
This 530 Sq Ft Floor Plan: Compact, Versatile, and Perfect for Modern Living
This 2-bedroom, 1-bathroom layout makes exceptional use of its 530 sq ft, offering a smart balance of private retreats and shared spaces. Designed with flexibility in mind, it caters to a variety of lifestyles and needs while maintaining comfort and functionality.
Creative Applications:
• Guest-Friendly Space: With two cozy bedrooms, this layout is ideal for hosting guests, offering a private and comfortable environment during their stay.
• Multigenerational Living: A practical option for small families, elderly relatives, or roommates, providing independence while sharing common areas.
• Work-Life Versatility: Use one bedroom as a dedicated home office, creative studio, or fitness room while enjoying the open kitchen, dining, and living space for daily activities.
• Rental Potential: A compact yet comfortable option for generating income as a long-term rental or short-term vacation unit.
This 530 sq ft floor plan delivers efficiency and adaptability in a smaller footprint. With customization options available through Alto Builders, you can tailor the design to perfectly suit your lifestyle or investment objectives.










